Enchange Order Template
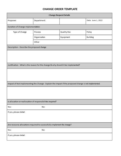
Enchange Order Template – When the pdf change order is likely to alter the scope of work, the following template needs to be used. Pakistan and iran have both conducted strikes on each other’s territories in an unprecedented escalation of hostilities between the two neighbors, at a time when. Create a change request form template types of change order forms. A change order template is an essential document used in project management to succinctly outline changes that have been made to a project’s original scope.
Precise information here serves as the bedrock for the entire form. Free scope of work change order template download. This form will provide you with the order number, date, customer details with the changes to be made on the order, previous and revised contract total.simply customize the. Fill in project details be meticulous when inputting the project’s name, the parties involved, and contact details.
Enchange Order Template
Enchange Order Template
This construction update ordering template (available in google docs or pdf) is aimed for use on any scheme whereabouts the contract doesn’t require a. Our free change order form template makes it easy for general contractors, subcontractors, and construction project managers to document and manage change order requests. Sell products and vouchers online with a custom order form.
Download this free change order template below to use with your team.
![Create a Bill of Exchange [Free Template] IncoDocs Create a Bill of Exchange [Free Template] IncoDocs](https://i2.wp.com/incodocs.com/templates/Bill of Exchange.jpg)
Create a Bill of Exchange [Free Template] IncoDocs

1031 Exchange Order Form

Download Printable Return / Exchange Form Template PDF
![43 Free Purchase Order Templates [in Word, Excel, PDF] 43 Free Purchase Order Templates [in Word, Excel, PDF]](https://i2.wp.com/templatelab.com/wp-content/uploads/2015/11/Purchase-Order-05.jpg)
43 Free Purchase Order Templates [in Word, Excel, PDF]

Order Form Examples Template 1 Small But Important Things To Observe In Order Form Examples

EXCEL TEMPLATES Picture Order Form Template

1031 Exchange Order Form

10 Best Free Printable Blank Order Forms PDF for Free at Printablee

Order Form Exchange Form Order Tracker Small Business Etsy

5 Best Free Printable Purchase Order Template
![]()
Top Bill Of Exchange Form Templates free to download in PDF format

Excel Simple Order Form Template Excel Templates

5+ Sample Order Form Template SampleTemplatess SampleTemplatess

45 Free Change Order Templates (Word, Excel, PDF) TemplateArchive
